规 划 公 示
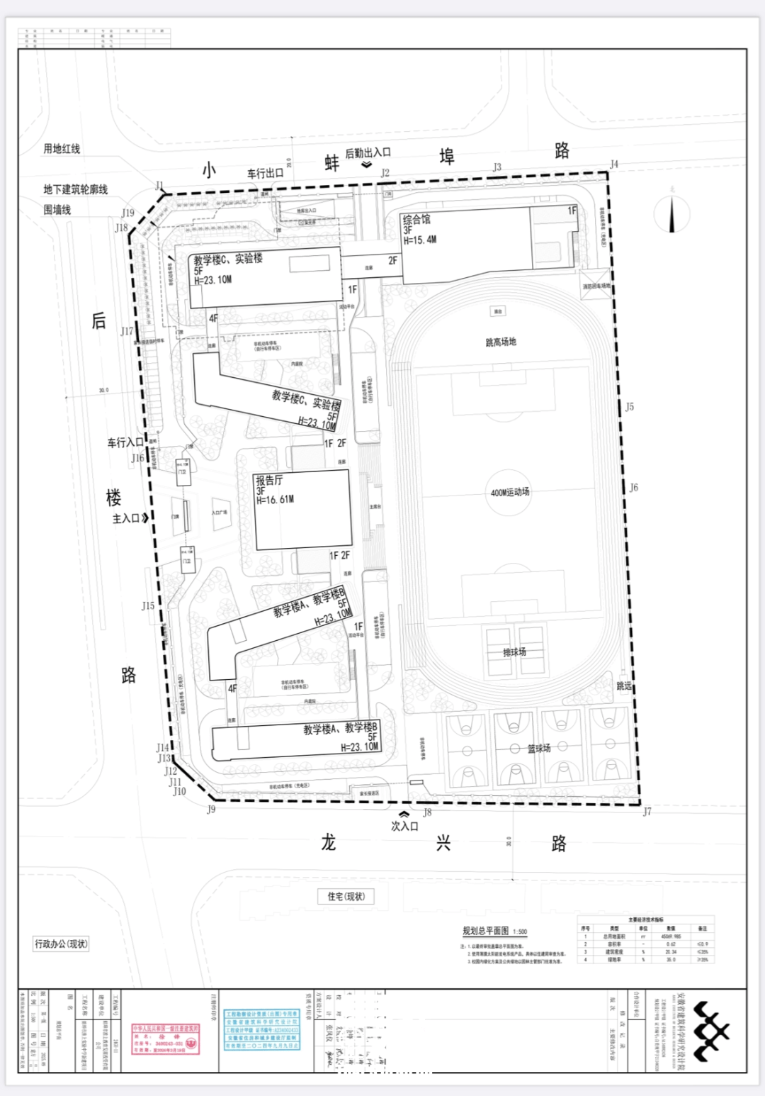
蚌埠市淮上教育发展投资有限公司拟在后楼路东侧、龙兴路北侧建设蚌埠市淮上实验中学项目,按照安徽省自然资源厅关于印发《安徽省建设项目规划许可管理暂行办法》的通知,现公示规划总平面图。
公示时间: 2025年10月14日--2025年10月22日
联系地址:蚌埠市南湖路1008号皖北国土交易中心大厦1605室
蚌埠市自然资源和规划局
2025年10月14日
规 划 公 示
蚌埠市淮上教育发展投资有限公司拟在后楼路东侧、龙兴路北侧建设蚌埠市淮上实验中学项目,按照安徽省自然资源厅关于印发《安徽省建设项目规划许可管理暂行办法》的通知,现公示规划总平面图。
公示时间: 2025年10月14日--2025年10月22日
联系地址:蚌埠市南湖路1008号皖北国土交易中心大厦1605室
蚌埠市自然资源和规划局
2025年10月14日